金瓶梅在线播放,学长惩罚我下面放震蛋上课,无码无遮挡刺激喷水视频,护士长在办公室躁bd

全國服務熱線021-64162222

不銹鋼閘閥閥門首頁 > 產品展示 > 閘閥 > 不銹鋼閘閥 >

產品名稱:200型不銹鋼閘閥價格及圖片[ 2024-02-29 ]

訂購熱線:021-64162222
訂購傳真:021-62677999
質量穩定:實行全過程質量監控,細致入微全方位檢測!
價格合理:高效內部成本控制,減少了開支,讓利于客戶
交貨快捷:先進生產流水線,充足的備貨,縮短了交貨期!
  • 產品介紹
  • 規格尺寸
  • 結構圖片
  • 一、不銹鋼閘閥產品介紹

    上海湖泉閥門集團有限公司不銹鋼閘閥的啟閉件是閘板,閘板的運動方向與流體方向相垂直,閘閥只能作全開和全關 , 不能作調節和節流。閘板有兩個密封面 , 最常用的楔式閘板閥的兩個密封面形成楔形、楔形角隨閥門參數而異 , 通常為 50, 介質溫度不高時為 2°52' 。楔式閘閥的閘板可以做成一個整體,叫做剛性閘板;也可以做成能產生微量變形的閘板 , 以改善其工藝性彌補密封面角度在加工過程中產生的偏差 , 這種閘板叫做彈性閘板。

    200型不銹鋼閘閥價格及圖片

    二、不銹鋼閘閥應用規范

    1、不銹鋼閘閥設計制造按GB12234-89 

    2、不銹鋼閘閥結構長度按GB12221-89

    3、不銹鋼閘閥法蘭尺寸按JB/T79-94

    4、不銹鋼閘閥閥門檢查和試驗按GB13927

    三、不銹鋼閘閥性能規范

    型號 公稱壓力
    (MPa)
    實驗壓力 工作溫度(℃) 適用介質
    強度(水)(Mpa) 密封(水)空氣 低壓密封空氣(Mpa)
    Z4IH-16C
    Z41W-16P(R)
    1.6 2.4 1.8 0.6 ≤200 NITRICACID
    硝酸類
    ACETICACID
    醋酸類
    NITRICACID
    Z41W-25P(R) 2.5 3.8 2.8 0.6 ≤200 硝酸類
    Z41W-40P(R) 4.0 6.0 4.4 0.6 ≤200 ACETICACID
    Z41W-64P(R) 6.4 9.6 7.0 0.6 ≤200 醋酸類

    四、不銹鋼閘閥主要零件材質

    閥體/閥蓋 ZG1Cr18Ni9Ti ZG00Cr18Ni10 ZG1Cr18Ni12Mo2Ti ZG00Cr17Ni14Mo2 WCB
    零件名稱 ZG1Cr18Ni9Ti系列 ZG00Cr18Ni10系列 ZG1Cr18Ni12Mo2Ti系列 ZG00Cr17Ni14Mo2系列 WCB系列
    閘板 ZG1Cr18NI9Ti ZG00Cr18Ni10 ZG1Cr18Ni12Mo2Ti ZG00Cr17Ni14Mo2 1Cr13
    閥桿 1Cr18Ni9Ti ooCr18Ni10 1Cr18Ni12Mo2Ti ooCr17Ni14Mo2 1Cr13
    填料 PTFE編織 PTFE編織 PTFE編織 PTFE編織 石墨Graphite
    墊片 304L+PTFE 304L+PTFE 316L+PTFE 316L+PTFE 石墨+304
    Graphite+304
    壓蓋 ZG1Cr181Ni10 ZG00Cr18Ni10 ZG1Cr18Ni12Mo2Ti ZG00Cr17Ni14Mo2 WCB
    填料壓環 1Cr18Ni9Ti 00Cr18Ni10 1Cr18Mi12Mo2Ti 00Cr17Ni14Mo2 1Cr13
    螺栓 1Cr171Ni2 1Cr171Ni2 1Cr171Ni2 1Cr171Ni2 35CrMoA
    螺母 1Cr18Ni9Ti 1Cr18Ni9Ti 1Cr18Ni9Ti 1Cr18Ni9Ti 45

    五、不銹鋼閘閥主要技術參數

    型號

    公稱壓力(Mpa)

    試驗壓力

    工作溫度(℃)

    適用介質

    強度

    密封(水)
    空氣(Mpa)

    低壓密封
    空氣(Mpa)

    Z41W-16P(R)

    1.6

    2.4

    1.8

    0.6

    ≤200

    NITRIC ACID

    硝酸類

    Z41W-25P(R)

    2.5

    3.8

    2.8

    0.6

    ≤200

    ACETIC ACID

    醋酸類

    Z41W-40P(R)

    4.0

    6.0

    4.4

    0.6

    ≤200

    NITRIC ACID

    硝酸類

    Z41W-64P(R)

    6.4

    9.6

    7.0

    0.6

    ≤200

    ACETIC ACID

    醋酸類

     

  •  

    型號

    公稱壓力(Mpa)

    公稱通徑
    DN(mm)

    尺寸(mm)

    重量
    (kg)

    L

    D

    D1

    D2

    b

    Z-фd

    H

    H1

    D0

    Z41W-16P
    Z41W-16R

    1.6

    15

    130

    95

    65

    45

    14

    4-ф14

    175

    195

    200

    4

    20

    150

    105

    75

    55

    14

    4-ф14

    180

    205

    200

    5

    25

    160

    115

    85

    65

    14

    4-ф14

    210

    240

    220

    6

    32

    180

    135

    100

    78

    16

    4-ф18

    210

    240

    220

    7

    40

    240

    145

    110

    85

    16

    4-ф18

    350

    425

    240

    18

    50

    250

    160

    125

    100

    16

    4-ф18

    358

    430

    240

    29

    65

    265

    180

    145

    120

    18

    4-ф18

    373

    452

    240

    33

    80

    280

    195

    160

    135

    20

    8-ф18

    435

    530

    280

    46

    100

    300

    215

    180

    155

    20

    8-ф18

    500

    620

    320

    63

    125

    325

    245

    210

    185

    24

    8-ф18

    614

    756

    360

    108

    150

    350

    280

    240

    210

    24

    8-ф23

    674

    845

    360

    134

    200

    400

    335

    295

    265

    26

    12-ф23

    818

    1041

    400

    192

    250

    450

    405

    355

    320

    30

    12-ф25

    969

    1244

    450

    273

    300

    500

    460

    410

    375

    30

    12-ф25

    1145

    1474

    560

    379

    350

    550

    520

    470

    435

    34

    16-ф25

    1280

    1663

    640

    590

    400

    600

    580

    525

    485

    36

    16-ф30

    1450

    1885

    720

    849

    500

    700

    705

    650

    608

    44

    20-ф34

    1676

    2181

    720

    958

    Z41H-25P
    Z41H-25R

    2.5

    15

    130

    95

    65

    45

    16

    4-ф14

    175

    195

    200

    4

    20

    150

    105

    75

    55

    16

    4-ф14

    180

    205

    200

    5

    25

    160

    115

    85

    65

    16

    4-ф14

    210

    240

    220

    6

    32

    180

    135

    100

    78

    18

    4-ф18

    210

    240

    220

    7

    40

    240

    145

    110

    85

    18

    4-ф18

    350

    425

    240

    18

    50

    250

    160

    125

    100

    20

    4-ф18

    358

    430

    240

    28

    65

    265

    180

    145

    120

    20

    8-ф18

    373

    452

    240

    33

    80

    280

    195

    160

    135

    22

    8-ф18

    435

    530

    280

    46

    100

    300

    230

    190

    160

    24

    8-ф23

    501

    620

    320

    64

    125

    325

    270

    220

    188

    28

    8-ф25

    614

    756

    360

    105

    150

    350

    300

    250

    218

    30

    8-ф25

    674

    845

    360

    134

    200

    400

    360

    310

    278

    34

    12-ф25

    818

    1041

    400

    213

    250

    450

    425

    370

    332

    36

    12-ф30

    969

    1244

    450

    290

    300

    500

    480

    430

    390

    40

    16-ф30

    1145

    1474

    560

    399

    350

    550

    550

    490

    448

    44

    16-ф34

    1280

    1663

    640

    631

    400

    600

    610

    550

    505

    48

    16-ф34

    1450

    1885

    720

    900

     

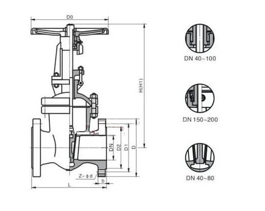
  • 不銹鋼閘閥結構圖

上一篇:電動閘閥Z941H-16C DN80(不銹鋼生產廠家) / 下一篇:智能型不銹鋼電動閘閥z941w-40p DN500