金瓶梅在线播放,学长惩罚我下面放震蛋上课,无码无遮挡刺激喷水视频,护士长在办公室躁bd

全國服務熱線021-64162222

刀型閘閥閥門首頁 > 產品展示 > 閘閥 > 刀型閘閥 >

產品名稱:電動手動方形刀閘閥500×500(生產廠家)[ 2024-06-07 ]

訂購熱線:021-64162222
訂購傳真:021-62677999
質量穩定:實行全過程質量監控,細致入微全方位檢測!
價格合理:高效內部成本控制,減少了開支,讓利于客戶
交貨快捷:先進生產流水線,充足的備貨,縮短了交貨期!
  • 產品介紹
  • 規格尺寸
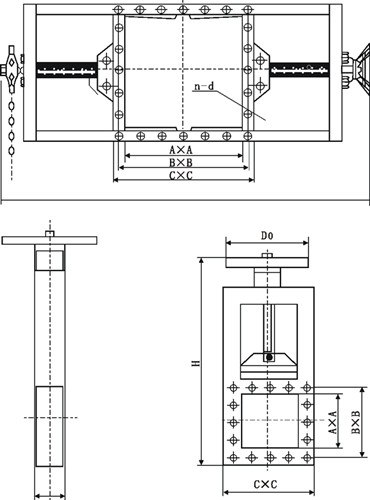
  • 結構圖片
  • 一、電動手動方形刀閘閥500×500(生產廠家)介紹

    上海湖泉閥門集團有限公司電動閘板閥,電動方形閘板閥,電動耐磨閘板閥,電動耐磨閘板門廣泛應用于建材、冶金、礦山等行業粉塵物料流量控制的管道上。是控制粉塵物料流向的理想設備。該閘門主要由框架、絲桿螺母、閘板、電動頭組成,電機的轉動,使絲桿帶著絲桿螺母和閘板作水平方向的往復運動,達到閥門的啟閉目的 ,是種粉料、晶粒料、顆粒料及小塊物料的流量或輸送量的主要控制設備,具有結構簡單、操縱靈活、重量輕、無卡阻、特別適用于各類固體物料和50mm左右塊狀、團狀物料的輸送及流量調節。
    電動手動方形刀閘閥500×500(生產廠家)

    二、電動手動方形刀閘閥500×500(生產廠家)特點

    1、具有全通徑的通道,等同于平滑的管道,流通能力大,流阻小;具有雙重上下游密封,無需潤滑的密封部位,密封性好,可靠性高;具有較少的零 部件;設計新穎,既滿足了管線的工藝性要求,又滿足了用戶的操作和維護簡便性的要求,能保證閥門長期可靠地運行。

    2、可提升的閘板密封面,可刮除密封面的的粘著物,自動清除雜物。

    3、整體的不銹鋼材質,可防止腐蝕破壞。

    4、短結構長度,可節省原料、安裝空間,也有效支持管道強度。

    5、上密封填料函設計,使上密封安全有效,經久耐用。

    6、三角形的支架節省原材料,保證需要的力學性能。

    7、閥體加強筋設計提高閥體強度。

    8、不銹鋼閥桿經久耐用,雙頭螺使用啟閉更為迅。

  • 類別

    A×A

    B×B

    C×C

    H

    L

    n-d

    重量

    單向

    200×200

    256×256

    296×296

    820

    100

    8-Φ12

    62

    250×250

    306×306

    346×346

    930

    100

    8-Φ14

    70.5

    300×300

    356×356

    396×396

    1050

    100

    8-Φ14

    81

    400×400

    456×456

    496×496

    140

    100

    12-Φ14

    114

    450×450

    510×510

    556×556

    1450

    120

    12-Φ18

    130

    500×500

    560×560

    606×606

    1610

    120

    16-Φ18

    147

    雙向

    600×600

    660×660

    706×706

    1830

    120

    16-Φ18

    169

    700×700

    770×770

    820×820

    2130

    140

    20-Φ18

    236

    800×800

    870×870

    920×920

    2440

    140

    20-Φ18

    303

    900×900

    974×974

    1030×1030

    2660

    160

    27-Φ23

    424

    1000×1000

    10741074

    1130×1130

    2870

    160

    24-Φ23

    636

    說明

    LMD-單向

    I-手輪

    距地面小于1.7米用手輪,大于1.7米用鏈輪
    鏈條節數M=0.105X-113(X是絲桿中心離地面度度)


  • 電動手動方形刀閘閥500×500(生產廠家)

上一篇:電動刀閘閥PZ973H-10 DN700礦用隔爆型 / 下一篇:DZ973X-10C-DN450智能一體化型電動暗桿式刀閘閥