金瓶梅在线播放,学长惩罚我下面放震蛋上课,无码无遮挡刺激喷水视频,护士长在办公室躁bd

全國服務熱線021-64162222

閘閥知識閥門首頁 > 閥門知識 > 閘閥知識 >

2023年10月26日帶你分享電動閘閥的工作原理是什么

[ 2023-10-26 ]
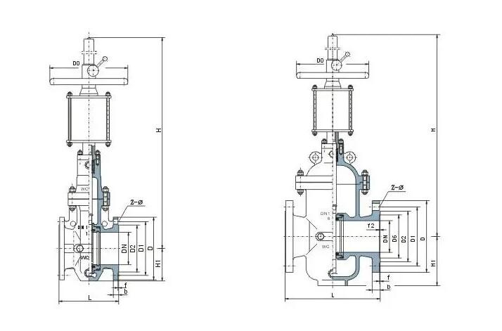
電動閘閥的工作原理是什么?電動閘閥顧名思義就是用電動執行器來控制閘閥,主要分為上部分和下部分,上部分為電動執行器,下部分為閘閥。將執行器和閘閥連接起來,由電動執行器控制閘閥啟閉而工作,達到管道介質通斷。電動閘閥工作原理: 電動閘閥是由電能作為動力來接通電動執行機構驅動閥門,連接閥桿帶動閥板做升降或啟閉運動,實現閥門對管道介質的開關進行控制使... 閘閥的工作原理及特點 閘閥是使用廣泛的截止閥門之一。在管路中一般應當水平安裝(即全開或全閉),不可用作節流介質的流動方向。電動閘閥是一種利用電能作為動力源的閥門。
閘閥
電動閘閥炸采用壓力自緊式密封或閥體、閥蓋墊片密封結構,值得信賴!使用安全可靠。
②它的閥瓣采用雙閘板中間帶萬向頂結構,能夠自動調整閥瓣與閥座密封面吻合度,保證閥門的密封。同時此結構維修方便,節約費用,閥瓣互換性較好。
③閥瓣、閥座密封面用鈷鉻鎢硬質合金由等離子噴焊而成,它的密封面硬度高,耐磨擦,抗擦傷,使用壽命長。
④它的閥桿用滲氮鋼制成,表面氮化處理,硬度高,抗擦傷,耐腐蝕,使用壽命長等優點。
⑤電動裝置執行器配有轉矩控制機構、現場操作機構和手、電動切換機構。除就地操作外,還可以進行遠距離操作、PLC控制、4~20mA電流輸入輸出智能控制等。
⑥手動閘閥由手動機構或撞擊時手輪開啟。減小閥門操作力。
⑦閘閥可安裝在管道的任何位置,同時根據介質和介質的溫度選擇碳鋼或合金鋼閥門。
⑧初次安裝和調試時,必須手動把閘閥開到約一半的位置,以免電機相序接反導致閥門或電裝損壞。
2023年10月26日帶你分享電動閘閥的工作原理是什么
電動閘閥工作性質:
它的驅動一般是用電機,比較耐電壓沖擊。電磁閥是快開和快關的,一般用在小流量和小壓力,要求開關頻率大的地方電動閥反之。電動閘閥的開度可以控制,狀態有開、關、半開半關,可以控制管道中介質的流量而電磁閥達不到這個要求。 氣動閘閥:借助壓縮空氣驅動的閥門。閘閥是一種最常見的啟閉閥,利用閘板(即啟閉件,在閘板中啟閉件稱為閘板或閘門,閘座稱為閘板座)來接通(全開)或截斷(全關)管路中的介質。它不允許作為截流用,使用中應避免將閘板微量開啟,因高速流動的介質的沖蝕會加速密封面的損壞。閘板在垂直于閘門座通道中心線的片面作為升降運動,象閘門一樣截斷管路中的介質,故稱做閘閥。
電動閥
電動閘閥的主要零部件材質
零件名稱
材質名稱
閥體
ZG1Cr18Ni9Ti
ZG00Cr18Ni10
ZG1Cr18Ni12Mo2Ti
ZG00Cr17Ni14Mo2
WCB
閥蓋
ZG1Cr18Ni9Ti
ZG00Cr18Ni10
ZG1Cr18Ni12Mo2Ti
ZG00Cr17Ni14Mo2
WCB
閘板
ZG1Cr18NI9Ti
ZG00Cr18Ni10
ZG1Cr18Ni12Mo2Ti
ZG00Cr17Ni14Mo2
1Cr13
閥桿
1Cr18Ni9Ti
ooCr18Ni10
1Cr18Ni12Mo2Ti
ooCr17Ni14Mo2
1Cr13
填料
PTFE編織
PTFE編織
PTFE編織
PTFE編織
石墨Graphite
墊片
304L+PTFE
304L+PTFE
316L+PTFE
316L+PTFE
石墨+304
Graphite+304
壓蓋
ZG1Cr181Ni10
ZG00Cr18Ni10
ZG1Cr18Ni12Mo2Ti
ZG00Cr17Ni14Mo2
WCB
填料壓環
1Cr18Ni9Ti
00Cr18Ni10
1Cr18Mi12Mo2Ti
00Cr17Ni14Mo2
1Cr13
螺栓
1Cr171Ni2
1Cr171Ni2
1Cr171Ni2
1Cr171Ni2
35CrMoA
螺母
1Cr18Ni9Ti
1Cr18Ni9Ti
1Cr18Ni9Ti
1Cr18Ni9Ti
45
電動閘閥
電動炸使用安裝注意事項
它可安裝在水平管路或垂直管路上,單雙閘板閘閥應安裝在水平管路上,且手輪應位于閥門上方,不允許朝下安裝。閘閥介質流動方向不受限制。閘閥通常采用法蘭連接,特殊場合也有用焊接連接的。
對于大口徑及高壓的閘閥,啟閉力矩較大。為了減小啟閉力矩,可采用安裝旁通閥的辦法。旁通閥安裝在主閘閥外部,它的進出口與主閘閥的兩側練練連接,并聯聯通。主閘閥開啟前應先開通旁通閥,進入閥后,使主閘閥閘板前后的壓力差減小,從而減小主閘閥的開啟力矩。旁通閥口徑的選用應根據主閥口徑和使用要求考慮。閘閥是截斷閥,密封性能不及截止閥。閘閥主要“職責”是“斷流”,以及以最小的阻力:“續流”。它不宜用作調節介質的流量和壓力,如長期用于調節,密封面易被介質沖刷磨損,影響密封性能。閘閥的介質溫度、壓力,對使用的可靠性應引起注意。在高溫、高壓時,由于溫度的變化可能使閘板鍥死,同時因各處介質溫度不均勻,易產生不密封現象。鍥式但閘板閥尤為明顯。
閘閥工作原理
本文標題:2023年10月26日帶你分享電動閘閥的工作原理是什么 本文地址:http://m.rcssw.com/tech-zhafa/4958.html

上一篇:電動插板閥型號列表及結構原理圖 / 下一篇:z941h-16c電動閘閥說明書及型號含義